House DMF

Location: Province of Vicenza, Italy
Year: 2024
Architects: Didonè Comacchio Architects
Photography by: Alberto Sinigaglia

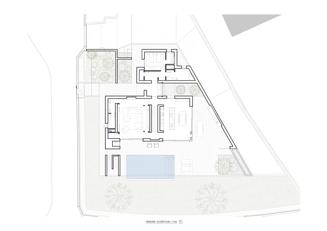
Project for a residence overlooking the suggestive hills of the north of the province of Vicenza. The villa, divided into two floors above ground and one underground, is expertly oriented on the lot to enhance the surrounding naturalistic panoramas. The interior spaces are designed in response to the specific needs of the clients, ensuring optimal functionality and harmonious use of the spaces.

The strategically positioned openings are designed to maximize the entry of natural light and create a welcoming atmosphere. The architectural volumes are presented in their essentiality, covered in earth-colored plaster, enriched by black metal details and wooden inserts that give warmth to the overall aesthetic. On the first floor, a private terrace is elegantly screened by a skin of vertical wooden slats, which offers the right degree of privacy without compromising the brightness.

The constructive dialogue with the owners led to a careful elaboration of the initial requests, aimed at creating large and functional spaces. The design includes a separate kitchen and living room, airy and bright bedrooms, each with a private bathroom and walk-in closet. In addition, a spacious convivial tavern is planned, with the possibility of integrating a wine cellar, for a domestic life experience that combines comfort and conviviality. Text description by the architects.

Source: www.didonecomacchio.com
Structure: N.O.S.
Construction: Meneghetti Costruzioni
Windows: Schuco (ZC Serramenti)
Electrical part: Flos
Plant and system design: Mountech Srl STP
Kitchen: Modulnova by Cariolato Arredamenti
Furniture: Cariolato Arredamenti
Garden: Friverde

Previous
Previous

House CD

Next
Next

Haus Baden bei Wien