The Inverted Farm

Location: Vuisternens-devant-Romont, Switzerland
Year: 2025
Architects: BARD YERSIN Architectes
Photography by: Willem Pab

Conversion of a farmhouse in La Bruyère, Vuisternens-devant-Romont

The project transforms a 19th-century farmhouse typical of the region, which brings together dwelling and agricultural functions beneath a single roof. Deprived of its farming use and located outside the building zone, this exceptionally large volume has become difficult to maintain given the limited habitable floor area permitted. In this context, the client’s mixed housing/permaculture program represents a rare opportunity for a coherent requalification of the whole.

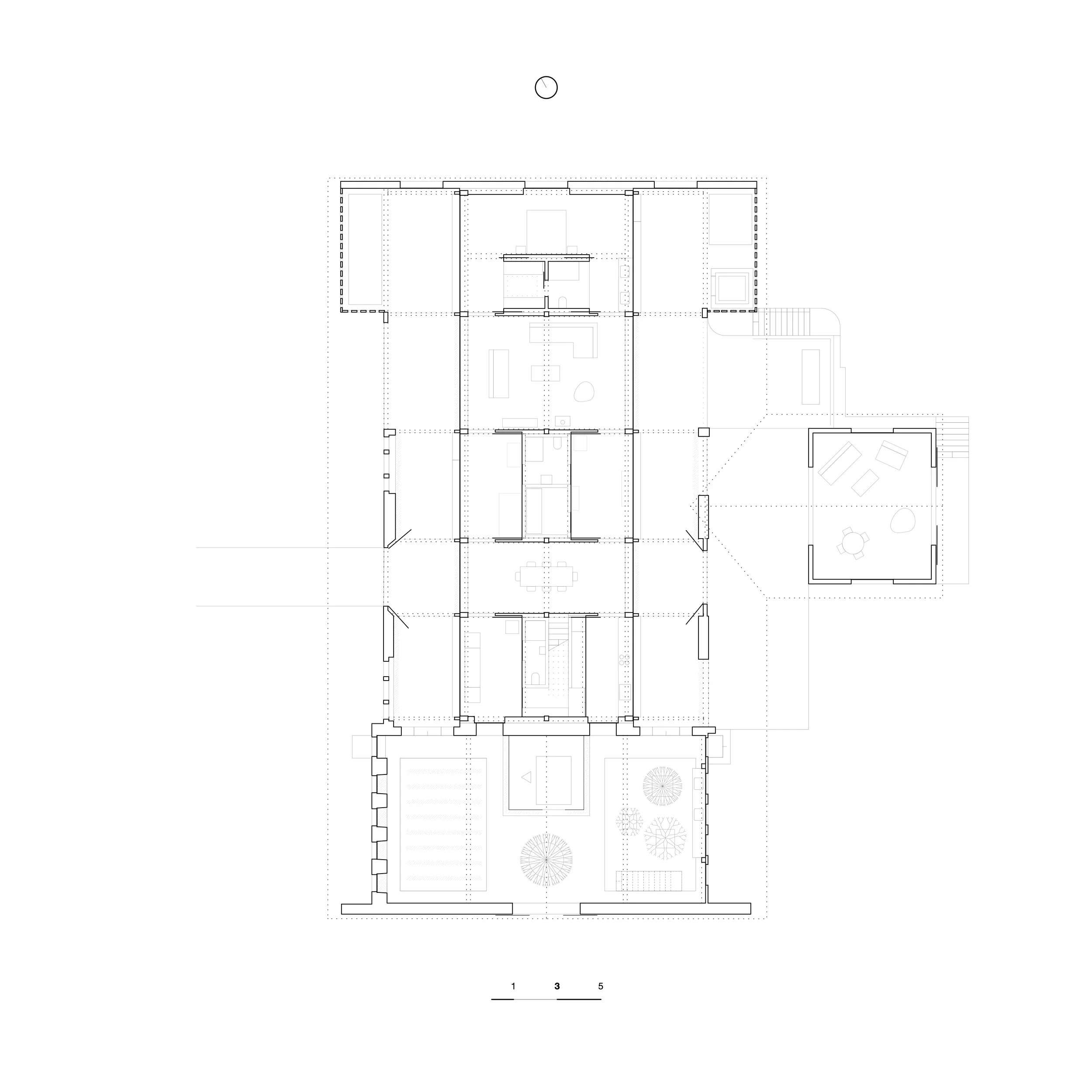
As the single-storey surface of the existing dwelling is insufficient for the owner’s needs, the project reverses the original uses: the former agricultural volume accommodates the new home, while the south-facing dwelling is completely emptied and converted into a greenhouse dedicated to permaculture. Since the barn space remains oversized for domestic requirements, the design strategy introduces a self-contained volume set back from the existing envelope. The resulting intermediate areas alternately serve planting zones and covered outdoor spaces for the house.

To anchor the new dwelling in the building’s constructive logic, it is conceived as a timber structural grid, set out on the module of the existing roof structure and complemented by timber and glass walls. This system efficiently transfers the roof loads while limiting the exogenous character of the inserted volume.

The plan organization follows the rhythm of the original structure: the bays corresponding to former haylofts accommodate the main spaces, benefiting from double-height volumes and through spaces, while the segments aligned with the former stables and storage areas are subdivided by terracotta brick cores housing the service spaces. Lateral enfilades connect the different rooms, reinforcing the perception of the building’s exceptional dimensions. Text description by the architects.

Source: www.bardyersin.ch
Photography by: ​Willem Pab

Previous
Previous

Unit 20

Next
Next

Loop Kebab