Loop Kebab

Location: Graz, Austria
Year: 2025
Architects: Studio Bonfim
Photography by: Tom Biela

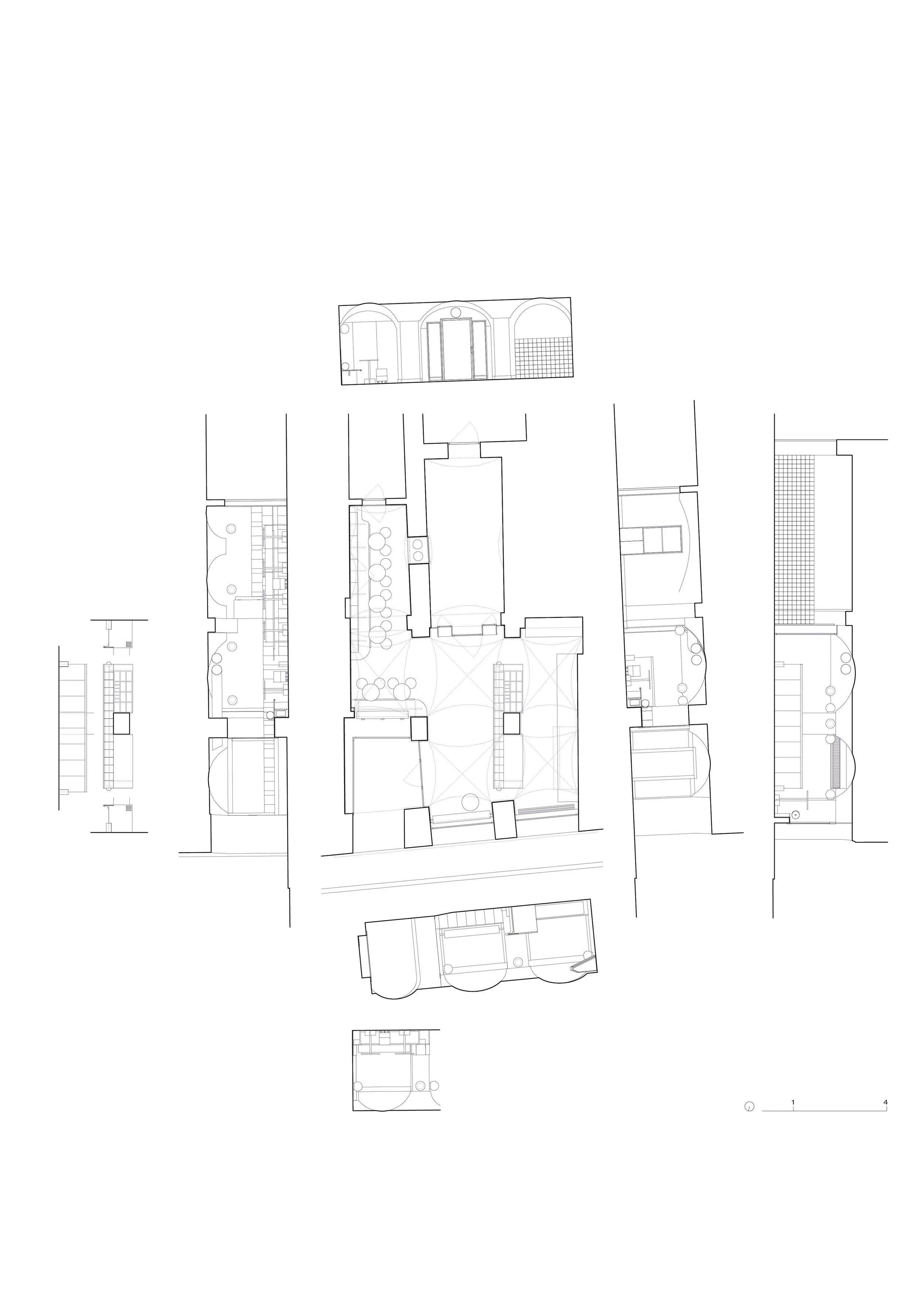
A retail space in a 17th-century building. Situated at a narrow point on Graz’s Annenstraße — seemingly marking the transition to the inner city. Once a men’s outfitter, later briefly a kebab shop, it was meant to return to that use. What we found was the bare structure. Potentials and challenges were revealed: deep, compact, and intricate, defined by a geometrically complex weave of arches and vaults. Only the ventilation system remained.

As so often in architecture, the project faced a familiar contradiction: a tight budget confronted the desire for quality, durability, and refined design. Our proposal was to address this tension on different scales through the theme of the “remnant.”

One expression of this was the reuse of leftover stone. The occasion was the memory of stone cylinders in the backyard of a stonemason in Lower Austria, which we had encountered during an earlier project. There, at the “stone graveyard,” we continued our search. The result: a collection of remnants and fragments of various types of stone, colors, and sizes.

Among them, the stone cylinders — waste from the production of urns. A local specialty. In various proportions, colors, and segmentations, they were used as bases for tables and stools, as well as corner protection for the counter.

Alongside them, slabs of green and white marble and black granite were available. They were intended to cover the most heavily used surfaces — the plinth areas and the counter. Given the limited quantity and the aim to work the material as little as possible, the remnants determined their specific use.

The green marble was leftover from one of the company’s trade show stands. Already cut to the size 30 × 90 cm, it set the design rhythm. In contrast, the black granite, originally a carrier for a higher-quality stone, and the white marble — a fragment left behind on its way to its intended destination, a jeweler in Doha.

The leftover as a theme also helped to address the irregularities of the existing structure. At the same time, it was a strategy to compensate for the technical and craft-related limitations of the self-build — carried out by the client and his father, with the support of the architects — while making them productive in terms of design. As a result, the design became a collective achievement. It is not absolute, but anticipates tolerances.

The new elements and layers unfold in dialogue with what was found. The counter follows the rotation of the structure, opening up into the space. A volumetric portal mediates between different functions, spatial zones and elements — wall, ceiling, ventilation. Benches and built-in structures make use of existing niches and the deep, narrow space. The layout traces the workflows of the kebab shop. Reflections and mirrored surfaces amplify the sense of movement. Within it, differentiated spatial impressions emerge.

We make use of inexpensive yet effective means to create spatial impact — color and light. Through them, the space gains presence within the dynamics of the urban environment. At a location defined by constant movement — trams, cyclists, pedestrians. Otherwise, nothing hints at anything new from the outside — except for a subtle “repair” on the façade. Text description by the architects.

Source: www.studiobonfim.com
Grafics: Paul Pacher

Client: Florian Lenz / Loop Kebab

Previous
Previous

The Inverted Farm

Next
Next

House in Rueil-Malmaison