SPEC Co. Ltd. Saitama Office

Location: Saitama, Japan
Year: 2025
Architects: DEINOCHEIRUS
Photography by: Kenta Hasegawa

This project involves creating a new office within the fabrication factory of a company whose primary business is the construction of retail spaces and offices.

In recent years, the client has increasingly been involved in pop-ups and event installations for a variety of global brands. For these projects, full-scale (1:1) mock-ups are sometimes produced.

In this space, creative teams from overseas brands, Japanese event production teams, and the craftspeople responsible for construction gather around the mock-ups to discuss and prepare for the final installation.

The office is designed as a simple structure positioned along one side of the factory.
The railings on the second floor and the staircase were carefully designed so that their thickness and slender lines correspond with the steel frames and braces in the factory. Spaced at regular intervals, these elements frame the simple structure of the office.

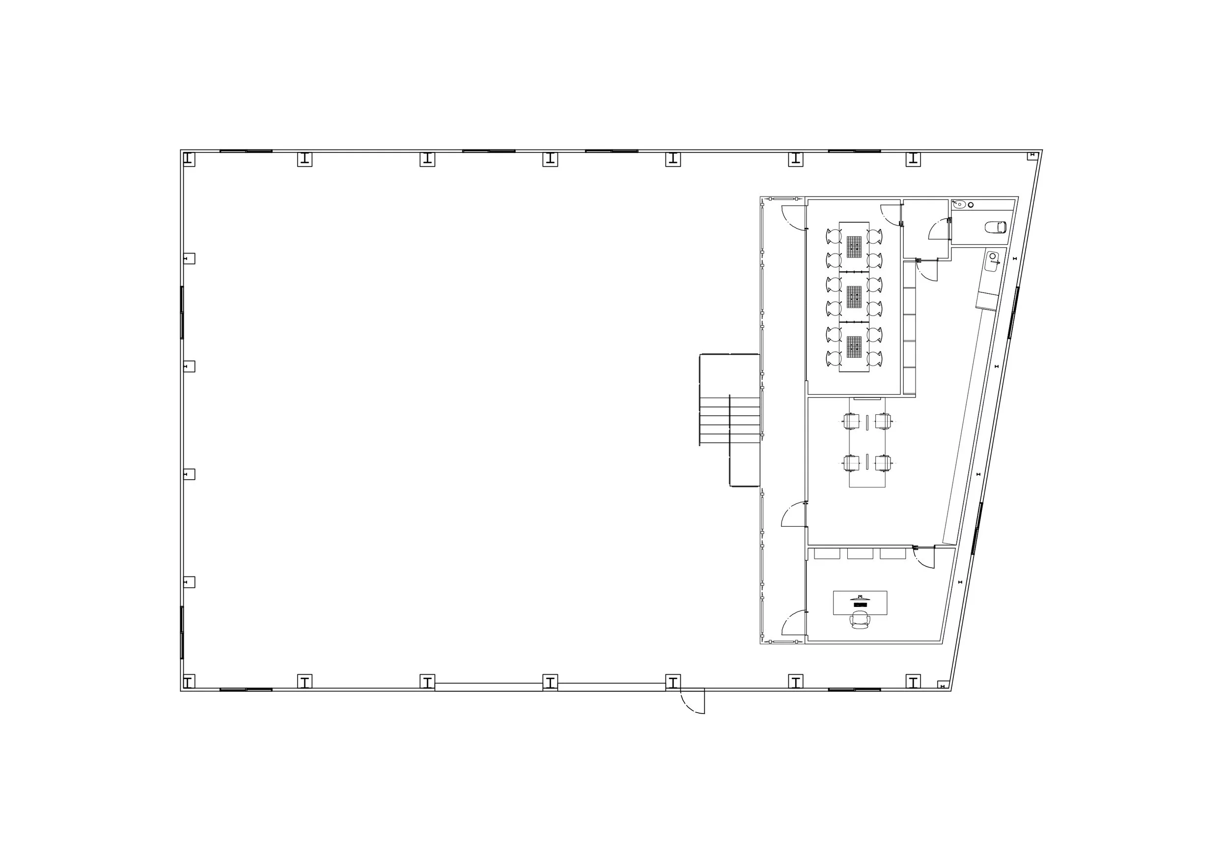
The president’s office and meeting room are enclosed in glass, making them visible within the space. Their walls and ceilings are finished in wood, adding warmth to the grey-toned factory interior, while distinctive tables and shelving draw visitors’ attention to the second floor.

Distinctive details are placed throughout the space, including door handles for the first-floor storage rooms made by intentionally combining gate wheels, tabletops formed by bolting together wired glass panels covered with frosted film, and table bases constructed from stacked concrete gardening blocks.

These design elements add character to the otherwise very simple architecture. They are intended to encourage active discussion and communication in the space, while also serving as a presentation tool, particularly for creative teams visiting from overseas, to convey that the construction team brings technical skill, playfulness, and a strong sense of aesthetics to their work. Text description by the architects.

Source: www.deinocheirus.com
Floor area: 110m2

Previous
Previous

Casa 01

Next
Next

Casa CNZ