Casa 01

Location: Rome, Italy
Year: 2025
Architects: Supersonic Architects
Photography by: Marcello Mariana

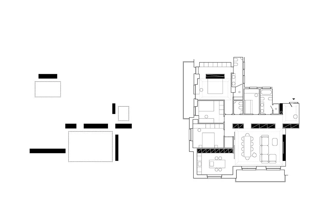
Casa 01 explores the relationship between architecture, craftsmanship, and the experience of living.The design unfolds beneath a series of vaulted ceilings, which shape the atmosphere of each room while connecting them into a single continuum. Rather than dividing spaces, these curved forms guide the eye, stretch views, and lend a sense of lightness and flow.

 A central role is played by the custom-designed fixed furniture, conceived as an integral part of the architecture rather than simple additions. The main wardrobe system works as both storage and spatial device: it traces a path that connects the entrance with the living area and, without interruption, leads to the private quarters. This continuity organizes the domestic landscape into a logical flow, where functions follow one another seamlessly and the perception of movement is both clear and natural.

Craftsmanship is present in every detail. The joinery, executed with precision and care, introduces warmth and tactility, while maintaining coherence with the apartment’s restrained geometries. The choice of natural marble further enriches the material palette, adding depth through variations in texture and tone. These stone surfaces interact with wood and light to produce measured contrasts, reinforcing the character of each space without overpowering it.

Casa 01 avoids decorative excess in favor of a language rooted in proportion, clarity, and material honesty. By aligning spatial rhythm with artisanal detail, the project establishes a luminous and coherent domestic environment—an apartment that reflects both the discipline of architectural design and the sensitivity of handcrafted work. Text description by the architects.

Source: www.supersonic.archi
Supersonic Architects: Matteo Miceli + Luigi Murgante

Previous
Previous

Yanho Restaurant

Next
Next

SPEC Co. Ltd. Saitama Office