Miami Apartment Design

Location: Miami, USA
Year: 2025
Architects: Lenka Ilic Architecture D.P.C.
Photography by: Lenka Ilic

Located in the dense urban core of Miami, this apartment design is based on a minimalistic approach which directly influences human behavior in a positive way by allowing the mind to focus and fall into a self-reflective state. “This phenomenon (minimalism) tends to adjust… circumstances to be in service of life…” Nikolic & Vasilski (2017).

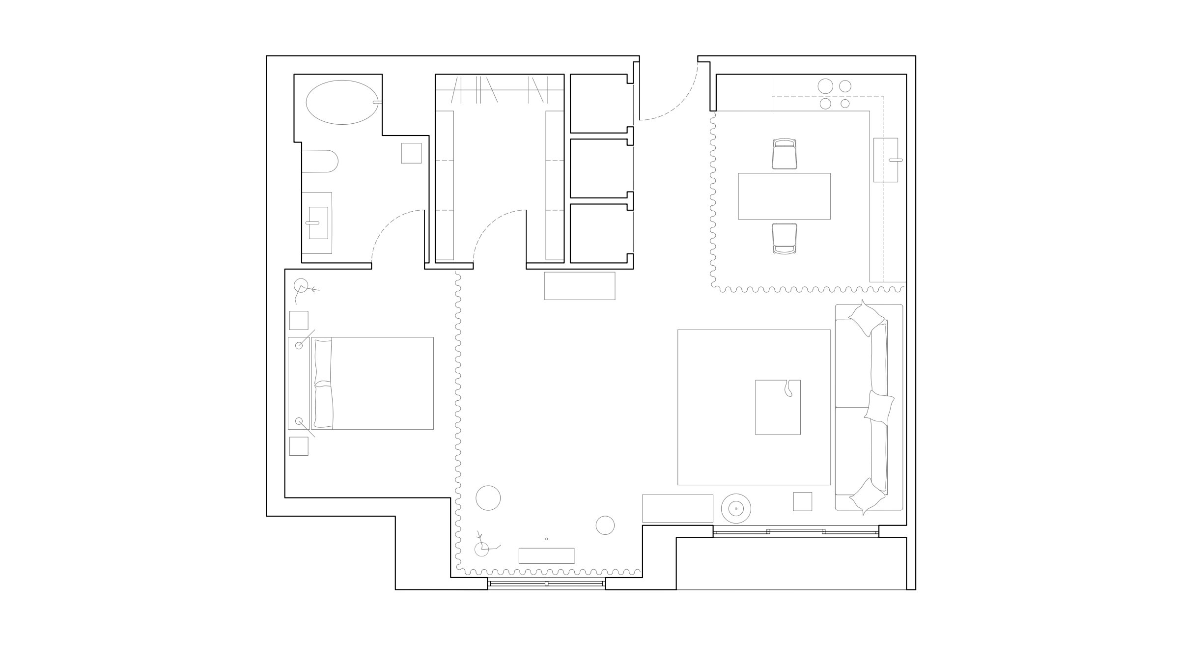
The open floor plan ideology, where spatial domestic functions blend, was a preference for a couple in their mid-thirties. The space serves as both a living area and a place for gathering, with functions divided by curtains as flexible elements. This flexibility allows the apartment to transform from an open plan to a diagram driven by the specific use of each space, permitting daylight to pass through as uniformly as possible.

The aesthetic is defined by white accents and a rigorous reduction of detail. Doors are frameless, appearing as wall surfaces defined only by a seam. Walls meet the concrete floor directly, without floorboards or reveals. The kitchen is a composition of modules with no visible hardware, featuring a 0.75-inch-thick stone countertop aligned perfectly with the cabinetry.

Furniture and lighting by Natuzzi, Nendo, Naoto Fukasawa, Junya Ishigami, Piero Lissoni, Lenka Ilic Studio, Davide Groppi, Flos, and Luceplan were selected to support mental acuity and well-being, promoting the values of under-consumption. Complemented by artworks by Laurence Philomène and Lenka Ilic, the space is a base for introspection and intimate connections. Text description by the architects.

Source: www.lenkailic-architecture.com
Photography Preparation: Danijela Pantic  
Area: 903 sqm

Previous
Previous

Casa CNZ

Next
Next

Unit 20