The White Brick House

Location: Málaga, Spain
Year: 2024
Architects: ​Crearctive

The white brick house is a semi-detached single-family home located in Alhaurín de la Torre, Málaga.

It is built on a small plot of 250 m2 with considerably restrictive urban planning conditions.

The desire of the owners was to be able to integrate a broad program of needs taking into account the restrictions established by local regulations regarding the maximum buildable area.

The design is a highly energy efficient building with subtle volumes created with white bricks which adapt seamlessly to the plot to embrace the different rooms in the house.

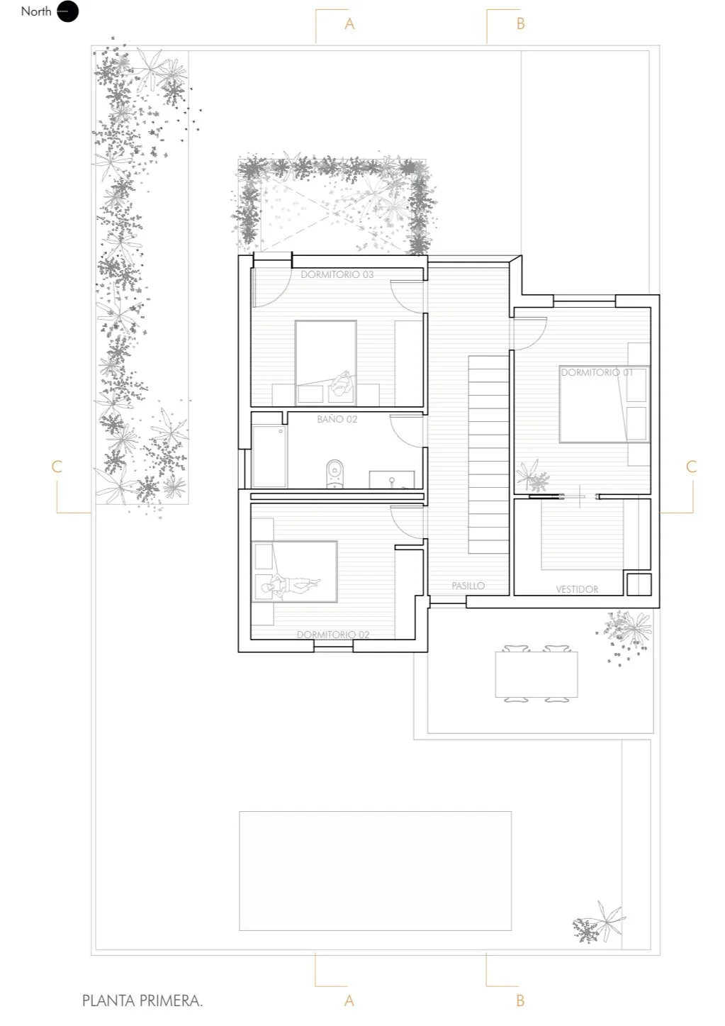
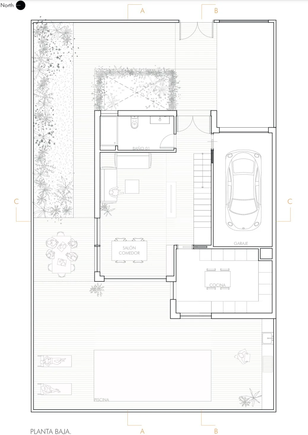
The design integrate the corridor and the staircase in the main space avoiding in this way compartmentalization and increasing the surface of the room. This set up favours crossed views through the large windows towards the outside and the pool area. The outdoor landscape is visually integrated in this way with the inner space giving the impression of a much larger space.

The windows maximize the intake of daylight which together with the semi-open floor plan that houses the common spaces results in the creation of fluid borders between the interior and the exterior.

The staircase becomes the main interior design element as a result of integrating the corridors in the common areas. It is created as a light sculptural element that characterizes the space without segregating it; an architectural piece that appears to levitate in the space.

An open area is planned for the basement; a versatile space designed to adapt to the different needs of the owners. A pleasant indirect natural light enters the space through an English patio accessible from the room itself.

The first floor accommodates the space intended for rest and tranquillity, housing the three bedrooms of the building. Text description by the architects.


Source: www.crearctive.com
Photography by: Nicolás Díaz

Previous
Previous

Hill House Facing the Glen

Next
Next

Funeral Home