The Space Between

Location: London, UK
Year: 2025
Architects: Matthew Giles Architects
Photography by: Lorenzo Zandri

Nestled into the steep hillside of Highgate, this understated family home has undergone a complete reimagining in masterplan - a comprehensive retrofit involving the reorganisation, extension, and full refurbishment of the main house, the construction of a new garden annex, and landscaping across the entire site. Purchased by our clients in 2020, the property and its expansive garden held enormous potential, yet demanded a radical rethinking of space, light, and connection to the landscape.

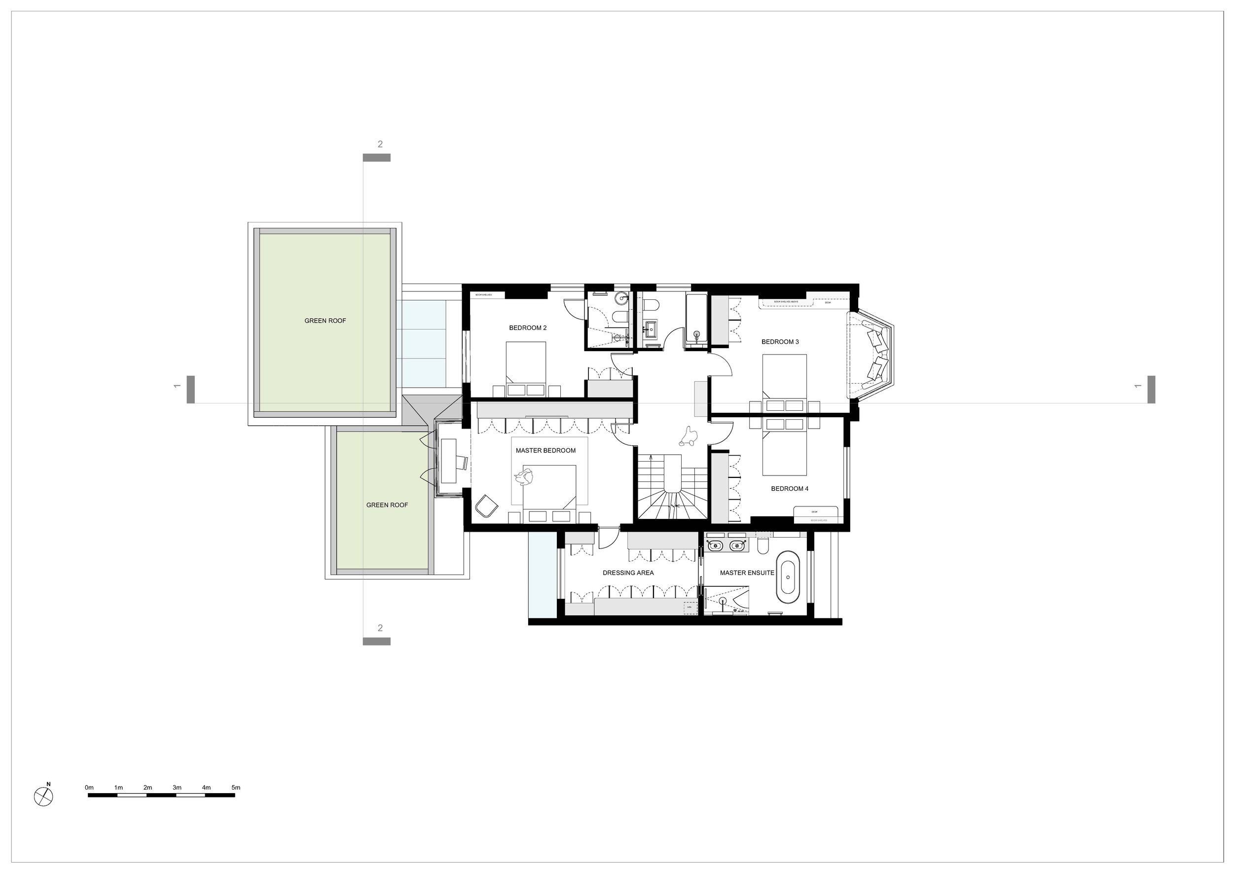
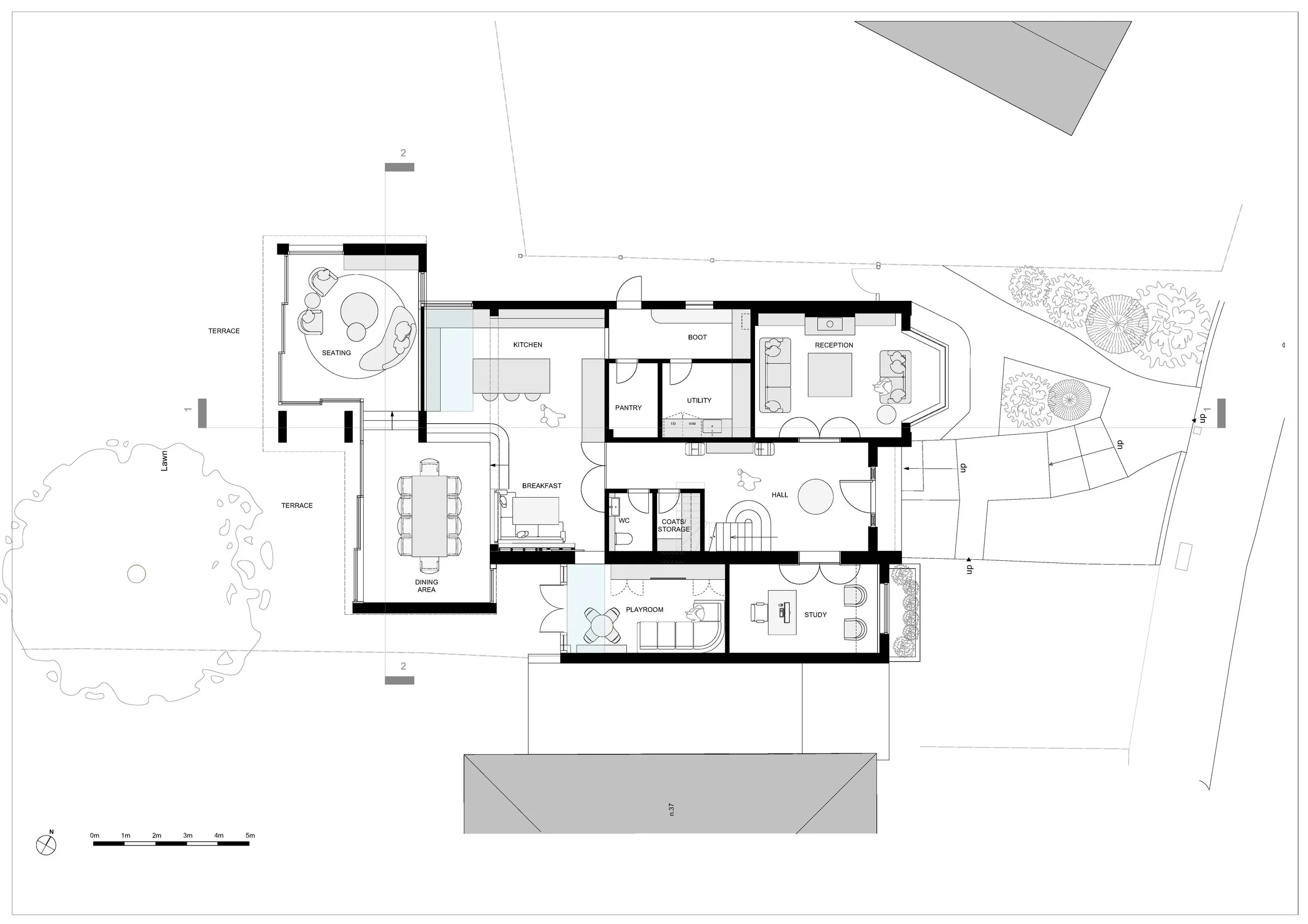
The narrative unfolds through a series of spaces that follow the site’s natural topography. With a fall of nearly seven metres from the driveway to the top of the garden, the rear living areas are composed as a sequence of smaller interlocking volumes, sensitively integrated with the terrain. Each living space - kitchen, dining, and sitting room - steps up by approximately half a metre, ascending with the natural gradient of the garden. Physically distinct yet visually connected, these rooms evoke a rhythm of intimacy and release: modest, more contained moments forming part of a larger living whole.

The roof of the extension features a green roof, creating the impression that the garden itself has been lifted and placed atop the structure when viewed from the top of the garden. At the far end of the site, a new garden annex mirrors the architectural language of the main house, establishing a dialogue between the two structures across the landscape.

The material palette reflects the tectonic clarity of the design - travertine, both rough-hewn and polished, paired with raw concrete structural elements. Internally, these robust materials are balanced by timber finishes, introducing warmth and a tactile, human scale to the otherwise rigorous architectural composition. The interplay of concrete, stone, and wood lends both depth and contrast, creating spaces that feel at once sculptural and inviting.

Developed in parallel with the architectural design, the landscaping forms an integrated whole - an unfolding series of external rooms where architecture and nature interlock seamlessly.
The result is a home that steps lightly yet confidently through its site - a composition of spaces that are at once sheltered and open, private yet generous.

Sustainability
Sustainability was a guiding principle throughout the transformation, with energy efficiency and material reuse seamlessly woven into the design. The concrete frame, beyond its structural role, functions as thermal mass, naturally regulating indoor temperatures. The scheme prioritises thermal performance through high-performance glazing, strategic insulation, and passive solar design, minimising reliance on artificial heating and cooling.

A green roof further enhances the project’s environmental credentials - supporting biodiversity, reducing rainwater runoff, and mitigating heat island effects. The retention of the original timber structure, along with period features such as cornicing and flooring, not only preserves the home’s heritage but also significantly reduces embodied carbon. Text description by the architects.

Source: www.matthewgilesarchitects.com
Gross internal area (sqm): 445 sqm (including Annex)
Construction Cost: Confidential
Structure engineer: Price & Myers
Interior Design: MGA and Hamilford Design
Landscape: MGA and Juliet Hutt Landscape Architecture
Contractor: MARO Construction
Landscape Contractor: Gardenlink
Glazing: L2i

Previous
Previous

Chelina House

Next
Next

House in Polônia Street