Refurbishment Of The European University Centre

Location: Nancy, France
Year: 2025
Architects: Vulcano+Gibello Architectes
Photography by: Charly Broyez

Located within the Carnot-Ravinelle Campus, the project site holds deep significance for the city of Nancy, both historically and architecturally. The University Palace, inaugurated in 1862, originally housed the faculties of Arts, Sciences, Law, Medicine, and the School of Pharmacy. At the time, it embodied the city’s ambition to become a center of intellectual influence. The new project takes root in this rich and prestigious setting. Accessible from Passage de Haldat, Rue de la Ravinelle, and Place Carnot, the property—comprising Buildings I, J, and L—forms an L-shaped layout along the northern and eastern edges of the plot. It sits within a dense urban fabric characteristic of the late 19th and early 20th centuries, adjacent to a contemporary structure designed by architects Christian François and Patricia Henrion.

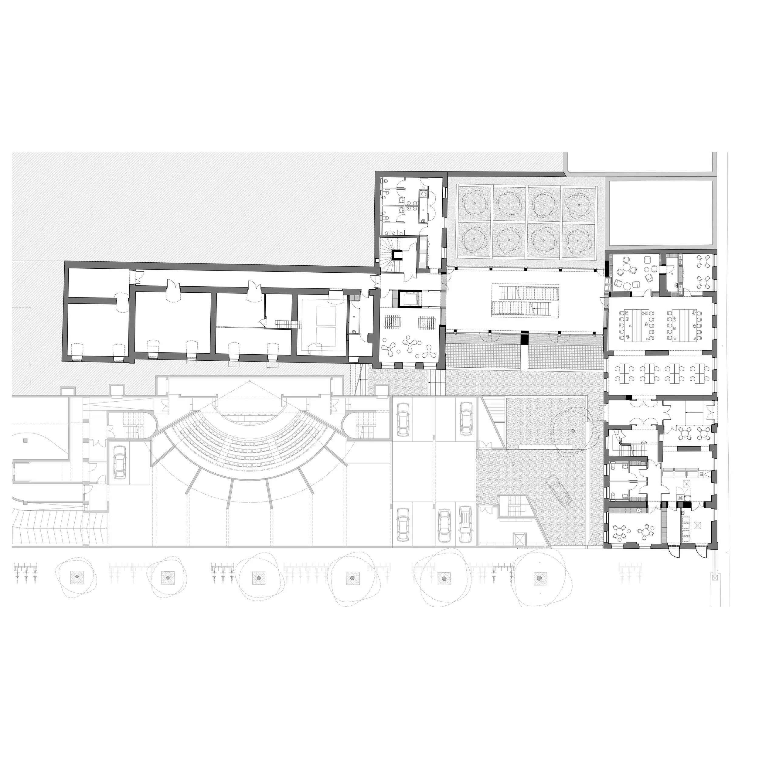
Program and Circulation
The program includes three major academic hubs (CEU, IPAG, and IRT), as well as the College of Law, Economics, and Management. The layout is organized by building and floor level, tailored to the specific functions of each space. At the heart of the intervention, a new circulation core is created—replacing the demolished Building I—to connect the various parts of the complex. This new volume, built as an extension of the forecourt, takes the form of a raised gallery set slightly back from Building J. From the forecourt, the elevation of the gallery allows views into the rear courtyard garden. Inside, a central double staircase with broad landings provides vertical access. But more than just functional, the gallery becomes a true social space—a lobby, corridor, and gathering point for users.

Architectural Expression
The design is intentionally compact and respectful of the existing buildings, maintaining their original height and scale. Made of limestone concrete, the gallery follows a symmetrical layout. While the façades may appear similar, they respond to their orientation in distinct ways:

. To the south, the gallery’s façade is generously perforated and screened with a Burgundy limestone claustra, offering protection from heat while casting patterned light. Set back from the main structure, this stone lattice provides depth, sheltering entrances and concealing maintenance walkways. Its light, textured surface establishes a strong dialogue with neighboring buildings. Supported by a single central column, the screen opens the inner block toward the garden, echoing the simple, geometric volumes of the adjacent Building K, while harmonizing with the tones and materials of surrounding façades.

. To the north, the gallery opens widely to capture the gentle, diffuse light of the northern sky. This façade offers expansive views of the garden from all levels. Finished in lime plaster, it reflects the treatment of surrounding courtyard façades. The rigorous geometry contrasts beautifully with the lush greenery of the courtyard. Designed to require minimal maintenance, the garden absorbs rainwater efficiently and acts as a cool microclimate in summer—an important function in this highly mineral architectural environment. Visible from the site’s entrance, the garden—like the gallery—contributes to transforming the former rear access into a welcoming and prominent entrance to the campus.

Sustainability and Comfort
The project prioritizes simple, reliable energy strategies over high-tech systems. Paired with a high-performance building envelope, the gallery ensures excellent thermal and humidity comfort throughout the year, while the existing buildings are significantly upgraded in terms of energy efficiency. User well-being was a central design focus, from the abundant natural light to the refined detailing of solid wood furniture. The spaces invite movement, pause, and interaction—encouraging a dynamic and inclusive campus life. Through its thoughtful architecture and choice of materials, the new addition brings a timeless clarity and institutional presence to the entire site, reinforcing the university’s identity while seamlessly integrating with its historic fabric. Text description by the architects.

Source: www.vulcano-gibello.com
Client : Université de Lorraine
Consultant : Artelia
Acoustic : DB Silence
Competition design : 2021
Program : university
Building cost : 5 000 000 euros
Surface : Gallery = 294 m² - Renovation = 3 000 m²
Drawings : Agence Vulcano - Gibello

Previous
Previous

Tiefes Haus

Next
Next

Effevu House