Logistics and Auxiliary Services for JATA

Spain

[José Miguel García Pérez]

JATA is a company with more than 50 years of experience in the manufacture and marketing of household appliances. With its original headquarters already obsolete, it was decided to build new, larger facilities, which would cover the current requirements of the company and the market. These requirements were mainly a large logistical area and spaces destined to activities of manipulation, recovery, production lines, laboratory, etc. On the other hand a properly administrative area.

With this distribution of the program and under operating guidelines studied by Jata throughout its history, the project was born with two volumes of pure lines and an industrialized construction based on prefabricated concrete elements, as a reference to the company and its production in series, which allowed to reduce the execution time. The largest volume houses the logistics program meanwhile the smaller one embraces the rest of the areas.

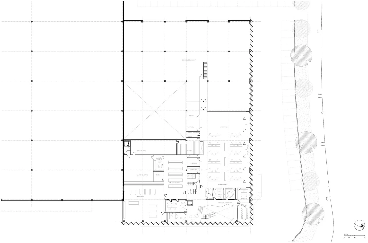
The logistic warehouse has 14.6 m of maximum height, 100 m of width and 120 m of length. It is a building with a closed facade of concrete panels placed horizontally, prefabricated structure of concrete sconces of big lights to achieve an interior space as clear as possible, naturally illuminated thanks to skylights and exutorios in deck. The offices, of smaller size and greater complexity, is defined by a facade with prefabricated elements of vertical concrete from floor to deck, with an orientation S-SO that allows to take advantage of the natural light for the whole day, achieving a uniform natural illumination throughout the building, and allowing the best possible views of the open landscape and the Moncayo peak. Light is present everywhere and transparency is intended in all spaces, creating connections between different working areas and achieving greater efficiency and better working conditions within the company.

Despite all difficulties, the program has been developed to achieve a project with an architectural value associated with the company, a design that corresponds to the innovative but, at the same time, traditional character of Jata Appliances.

This quality of the building based on repetition, austerity and functionality generates a rigorous piece that is necessary to disrupt in order to mark the access to the interior. Therefore, the entrance to the office building fractures a corner of the main parallelepiped, creating an atrium of double height and broken shape that contrasts with the austerity of the totality. Text description provided by the architects.

Source: www.archaily.com
Photography by: José Manuel Cutillas

Previous
Previous

West Bund Museum

Next
Next

The Trin Cabin