Buca House

Location: Quito, Ecuador
Year: 2019
Architects: QORI Arquitectura
Photography by: Bicubik

BUCA is built on three operations that define its conceptual and material structure: the reinterpretation of the binuclear typology, working with topography as the basis for the project, and the recovery of the native garden.

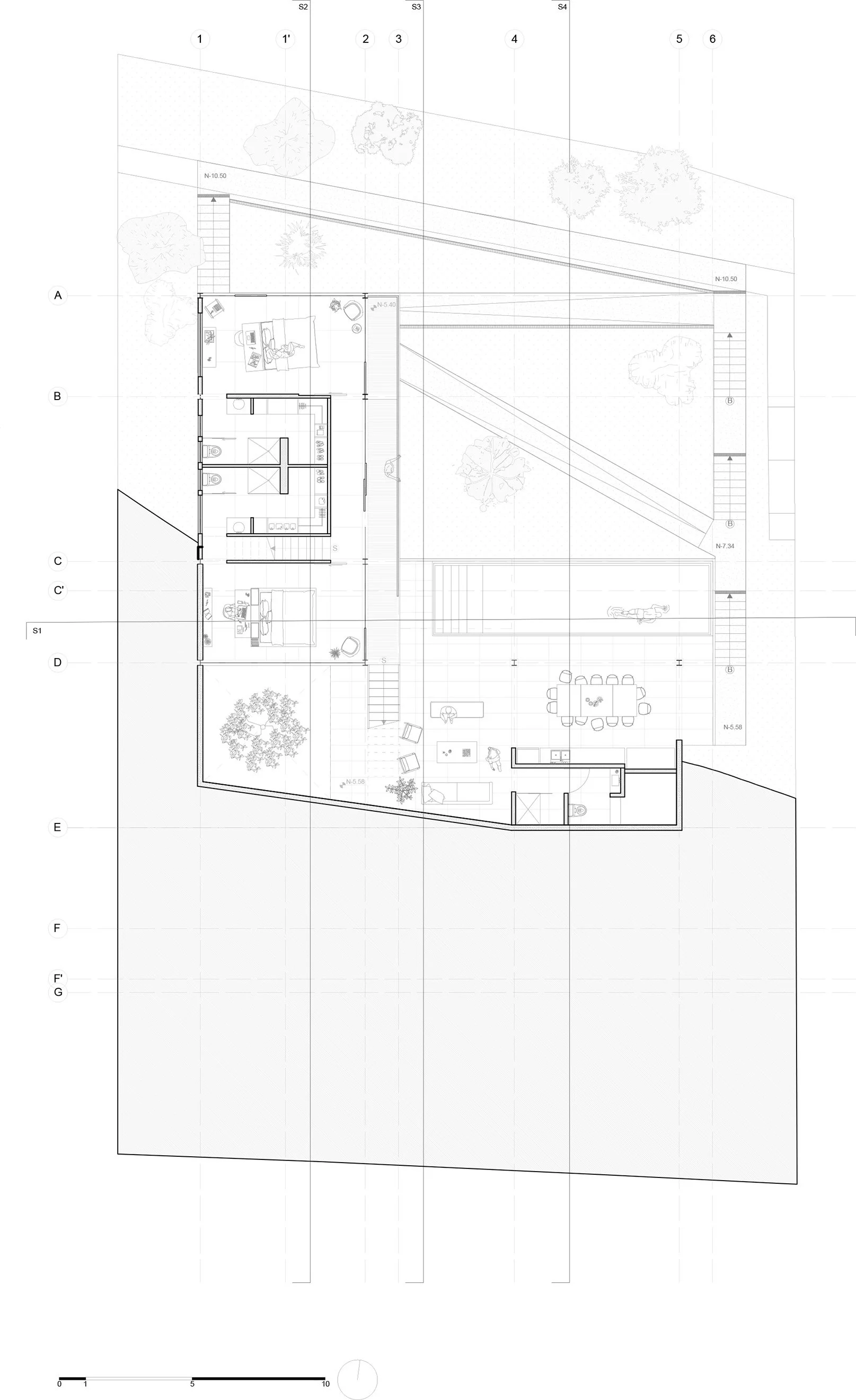
The project revisits the binuclear scheme developed by Marcel Breuer, not as a functional solution, but as a formal principle. Transferring this model to another geography, climate, and material culture does not seek neutrality, but possibility: reorganizing elements, establishing new relationships, and opening the type to unexpected conditions. The type becomes a method. Two morphologically identical volumes face each other without touching. Between them is a void—a courtyard—that articulates the house: it separates the uses, organizes access, and structures the relationship with the landscape. The courtyard is not introduced as a figure, but as a consequence; it is not an addition, but the center of the project and its parti.

The house is located on a plot with a 44% slope, between Quito and the Cumbayá Valley. Instead of modifying the topography, the project works with it: it is built from the cut. Three levels structure the sequence of spaces. The first, at street level, marks the threshold between the public and the domestic, under the shade of two ceibo trees and a guayacán. The second, articulated by the courtyard, defines the main entrance and opens toward the view. A mirror of water reflects the sky and marks the passage of time. On one side is the social volume, with double height; on the other, the more intimate one, with the bedrooms. The lower level, partially excavated, connects to the garden and recalls the logic of the Andean ravines: its atmosphere, its temperature, and its shadow.

The garden is not a scenic backdrop: it is part of the project. The original terrain was occupied by a eucalyptus forest planted in the 19th century as a productive monoculture. It was decided to clear it completely and plant more than 300 native Andean species. This operation transformed the site into an island of biodiversity. Throughout the year, the garden changes in color, humidity, and inhabitants. The architecture responds to these changes without imposing itself.

The binuclear organization responds not only to a distributive logic, but also to a way of establishing relationships: between interior and exterior, program and landscape, geometry and use. The floor plan is based on a three-dimensional grid measuring 1.2 meters per side. This system—rigid in appearance—allows the architecture and program to adapt precisely to variations in the terrain without compromising its formal clarity. It is not a question of flexibility, but rather a structure capable of sustaining multiple conditions without losing rigor. Text description by the architects.

Source: www.qoriarquitectura.com

Previous
Previous

Khanong Phra Campsite

Next
Next

Cal Jan