28 Patios and 14 Social Housings

Location: Málaga, Spain
Year: 2024
Architects: Crearctive + RKT Estudio
Photography by: Nicolás Díaz

The project starts from a clear intention: to rethink social housing from a spatial logic that surpasses the dichotomy between interior and exterior. It thus articulates a system of fills and voids that not only shapes housing units but also creates atmospheres and relationships, expanding housing beyond its physical limits and incorporating outdoor space as an active part of daily life. This space operates simultaneously as a climate support, a place for social interaction, and a programmed extension.

Located in the rural environment of Almargen (Málaga), the ensemble aims for architecture integrated into its topographical and climatic context, with high energy efficiency and fully industrialized construction. Through a high-performance thermal technical envelope and a dry construction system based on lightweight galvanized steel framing (Light Steel Framing), precise execution is guaranteed, along with significant reduction in timelines and greater economic certainty. This strategy minimizes dependence on specialized labor and maximizes the quality of the final result.

The project is situated on a steep plot with a four-meter elevation difference between its two main fronts and a radial geometry defined by an irregular urban layout. These topographical and morphological conditions, along with the climate context — cold winters, hot and dry summers, strong east and west winds — shape the design starting point, leveraging the terrain’s features to generate architecture that is integrated into its environment.

The radial parcel subdivision strategy allows dividing the main plot into seven equivalent pieces housing a total of fourteen residential units arranged one above the other. The homes are aligned longitudinally along the north-south and south-north axes and are placed in a staggered grid that creates a spatial alternation, optimizing orientation, increasing solar gain, and promoting cross-ventilation.

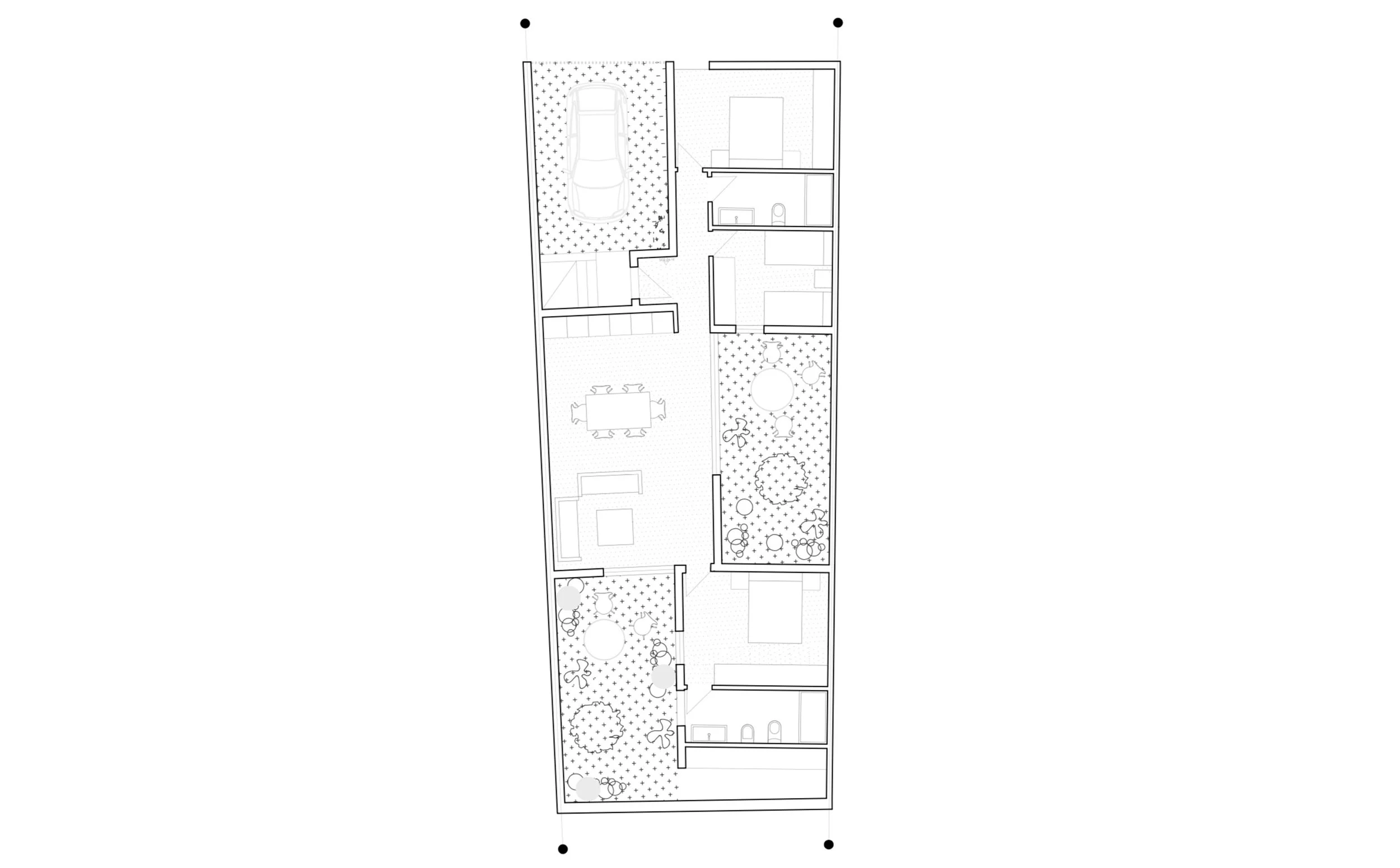
The stepped arrangement of the ensemble takes advantage of the terrain’s slope: two-bedroom homes are located at the upper level with access from Pablo Ruiz Picasso street, while three-bedroom homes, partially semi-buried, are placed at the lower level with access from Matagallar street. In both types, the program is developed on a single level, optimizing circulation and enhancing accessibility.

The staggered strategy is not only a compositional choice but also functions as an environmental regulation device. This configuration provides each unit with linked outdoor spaces — patios, terraces, and thresholds — that act as thermal buffers and transition zones. For each square meter of built surface, 0.65 m² of exterior surfaces are allocated, promoting an expanded domesticity that is climatically efficient.

The patios, arranged adjacent to neighboring homes, form larger voids that maximize winter sunlight and enable cross-ventilation in all rooms during summer nights. These strategies reduce reliance on active climate control systems, activating passive strategies that organically integrate into the architecture.

Three-bedroom homes feature three distinct patios. The first — located to the north — is accessed via the threshold that creates a walkway housing the laundry lines. This space responds to parking reserve requirements but is conceived as a hybrid space: a flexible, user-appropriable area that can function as a garage, porch, or summer communal patio. Its ambiguous character, where public and domestic spaces intertwine, fosters neighborhood social interactions.

The second patio, intermediate in size and connected to the kitchen and dining area, acts as the social core of the home, offering an outdoor extension of the main living space. Due to its size and use, it becomes a versatile space suitable for everyday life and special occasions. The third patio, oriented south and linked to the living room, is designed as a winter patio, capturing solar radiation and allowing outdoor activities even in the coldest months.

Each patio follows a specific logic within the residential system. The treatment of openings and visual relationships with neighboring homes is carefully designed to ensure maximum privacy without compromising solar gain during cold months.

Two-bedroom homes, located at the upper levels of the plot, are organized along their south-north axis. The spatial sequence revolves around two fundamental exterior spaces responding to precise climatic logic:

A south-facing patio at the entrance acts as an active solar transition space, serving as an intermediate threshold between street and interior, storing heat during cold months and softening the entry.

An open north-facing terrace functions as a summer relief space, visually framing the surrounding olive grove landscape while remaining cool and ventilated during hot months, expanding outdoor use possibilities on sunny days.

The proposal incorporates archetypal elements of Mediterranean architecture, such as interior patios, accessible terraces, and passive solar protection systems, like sunshades placed on the exterior window frames. Due to the high temperatures during the summer months, it becomes necessary to use these systems to shield the glass from direct solar radiation, thus achieving optimal thermal comfort throughout the year. The design of these sunshades responds to the orientation of each façade where they are located.

As a result, the homes achieve high energy efficiency with very low heating and cooling demands. One of the key features of the project is its fully industrialized construction system. Starting from the foundation, the houses are built with a lightweight galvanized steel structure called Light Steel Framing, which reduces the weight by one-third compared to conventional structures. This allows for lighter foundations and more efficient construction processes.

The building envelope consists of lightweight, high-performance thermal panels designed with a continuous insulation strategy that eliminates thermal bridges, improves energy efficiency, and maximizes usable space. This millimeter-precise construction, combined with reduced construction times and less dependence on specialized labor, ensures high-quality execution, lower economic uncertainty, and greater safety during construction.

More than just a technical solution, the industrialized system becomes a tool to achieve a replicable, efficient, and climate-sensitive model. Text description by the architects.

Source: www.crearctive.com

Previous
Previous

House with two Courtyards

Next
Next

200_Villa with Internal View